2025年5〜6月のトルコ旅行記です(料金は2026年4月調べのものを記載してます)。
世界遺産「イスタンブール歴史地区」を構成する「キュチュク・アヤソフィア」(リトル・ハギア・ソフィア)を訪問しました。アヤソフィアと同じく元々は教会で、16世紀からモスクに改装されていますが、ビザンツ時代の面影を見ることができる貴重な建造物です。
この記事では、「キュチュク・アヤソフィア」(リトル・ハギア・ソフィア)の見どころや特徴、歴史などを解説していきます。
世界遺産「イスタンブール歴史地区」の全体の解説は以下より。

キュチュク・アヤソフィアの歴史
世界遺産キュチュク・アヤソフィア(Küçük Ayasofya)はトルコ語で「小さいアヤソフィア」を意味します。英語読みではリトル・ハギア・ソフィア(Little Hagia Sophia)となります。
キュチュク・アヤソフィア(リトル・ハギア・ソフィア)の歴史を簡単に解説します。
キュチュク・アヤソフィア(リトル・ハギア・ソフィア)は、532年から537年にかけてビザンツ皇帝ユスティニアヌス1世によりビザンツ建築の教会として建てられました。元々の名前は「聖セルギウスとバッカス教会」です。

アヤソフィア(ハギア・ソフィア)と同じ時期の建造で、アヤソフィアのモデルになったと考えられていたため、後に小さいアヤソフィアと呼ばれるようになりましたが、構造的にかなり違っており、現在ではその説は否定されています。
1453年オスマン帝国がコンスタンティノープルを陥落させ、ビザンツ帝国が滅亡した後、しばらくそのまま放置されていました。
16世紀初頭(8代バヤズィト2世の時代)、黒人宦官長ヒュセイン・アーによりモスクに改装され、その後何世紀にも渡り、修復や増築が繰り返されました。
1985年に「イスタンブール歴史地区」を構成する世界遺産として登録されました。
その後キュチュク・アヤソフィア(リトル・ハギア・ソフィア)は劣化が深刻になり、ユネスコの危機遺産リストに追加されました。数年に及ぶ大規模な修復工事が2006年に完了し、一般公開と礼拝のために再び開放されました。
場所・料金・営業時間
キュチュク・アヤソフィア(リトル・ハギア・ソフィア)の場所は以下です。スルタンアフメト・モスクから徒歩10分弱で、マルマラ海近くにあります。
キュチュク・アヤソフィア(リトル・ハギア・ソフィア)の料金と営業時間は以下となります(2026年4月調べ)。詳細は公式サイトにて。モスクなので無料で入場できます。女性はスカーフで頭を覆う必要があります(スカーフは入口で貸し出しあり)。礼拝時間は入場できません。日中であればお昼前後、17時前後を避ければ礼拝時間と被らないと思います。金曜に関しては集団礼拝があるので、昼過ぎから入場可能になると思います。詳しい礼拝時間はこちらより。
- チケット料金:無料
- 営業時間:8:00〜20:00 ※礼拝の時間は入場禁止
全体図
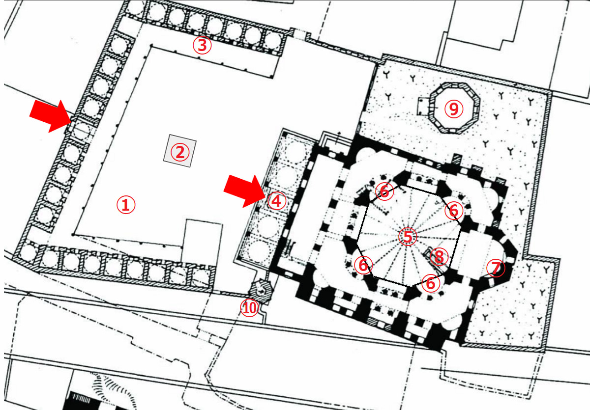
キュチュク・アヤソフィア(リトル・ハギア・ソフィア)の全体図です。四角形の建物内部は、8本の多角形の柱を使って八角形平面が作られ、その上に八角形ドーム(⑤)が載っています。副ドーム(半円ドーム)が4つあり(⑥)、八角形ドームを支えています。中庭(①)や回廊(③)はオスマン時代にモスクに改装されてから増築されました。現在回廊にはお店が並んでいます。

①中庭
②泉亭
③回廊
④柱廊
⑤主ドーム(八角形)
⑥副ドーム(半円ドーム)×4
⑦ミフラーブ:メッカの方向を示す窪み
⑧ミンバル:説教壇
⑨ヒュセイン・アー廟
⑩ミナレット×1
主な見どころ
キュチュク・アヤソフィア(リトル・ハギア・ソフィア)の主な見どころを解説していきます。観光の所要時間は15〜20分程度かなと思います。近くにあるソコルル・メフメト・パシャ・モスクと同様、観光客が少ないエリアなのでじっくり観光できます。
外観・中庭
外観は他の多くのビザンツ建築と同じく、レンガと石が積まれた構造になっています。ミナレット(⑩)は1本です。


中庭への入口です。

中庭(①)には泉亭(②)があります。中庭は芝生や木が生えており、歩けるスペースは限られています。長閑な雰囲気です。
回廊(③)には現在いくつもお店が入っており、小さな商店街になっています。
中庭を出ると目の前には、キュチュク・アヤソフィア(リトル・ハギア・ソフィア)の入口と柱廊(④)があります。柱廊は小ドーム5つで構成されています。
礼拝室のすぐ隣(北側)には、モスクに改装した黒人宦官長ヒュセイン・アーの廟(⑨)が建っています。こちらもレンガと石で積まれた典型的なビザンツ建築です。

内部
内部へ入ります。
全体的に漆喰で覆われており、その上に幾何学模様などの絵が描かれています。元々教会なのでモザイク画などの聖像画があったと思うんですが、モスクに改装される時に漆喰で隠されてしまったようです。剥がしたら出てくるのでしょうか。

8本の多角形柱で八角形平面が作られ、八角形ドーム(⑤)が載っています。この平面の作りは、オスマン帝国の著名な建築家ミマール・シナンがリュステム・パシャ・モスクを設計する時に参考にしたとのことです。八角形ドームはリブで16分割されています。円形ドームばかり観てきたので、多角形ドームは新鮮です。副ドーム4つ(⑥)が主ドームを支えています。
2階建てになっています。多角形の柱の間には大理石の円柱が2本ずつあります(1、2階どちらにも)。

大理石のミンバル(⑧)です。美しいです。ミフラーブ(⑦)は結構奥にあり、近くまで行けなかったので撮影できませんでした。

こちらは元々井戸だったようです。室内にある沐浴場だったのでしょうか。

教会時代から残るレリーフ
ビザンツ時代のレリーフも一部残っており、見応えがあります。
大理石柱の柱頭の透かし彫りです。アヤソフィアで見かけたものと似たようなデザインです。
柱頭の上の水平部分(エンタブラチュアと呼ばれる)にも透かし彫りなどレリーフがありお見事です。皇帝ユスティニアヌス1世、妻テオドラ、聖ゼルギウスに捧げられたギリシャ語の碑文が彫られています。
まとめ
世界遺産キュチュク・アヤソフィア(リトル・ハギア・ソフィア)の観光の見どころなどまとめです。
- アヤソフィアやアヤイリニ教会と並ぶビザンツ時代の建造物
- 八角形ドームが美しい
- 僅かに残るビザンツ時代のレリーフが見どころ
- 観光の所要時間は15〜20分程
- 観光客があまりいないのでゆっくり観れる


















